首页 装潢设计 句容知名装修公司-天正理想城两室两厅装修案例-句容口碑好的装修公司

句容知名装修公司-天正理想城两室两厅装修案例-句容口碑好的装修公司

发布时间 2016-11-13 收藏 分享
价格 面议
区域 全国
来源 南京一号家居信息科技有限公司

详情描述:

句容知名装修公司-天正理想城两室两厅装修案例-句容口碑好的装修公司

句容天正理想城现代简约装修案例,咨询热线:132-6071-9302在线咨询:

334-7454-286,句容靠谱的装修公司有哪些?句容比较有名的装修公司有哪些?句容一号家居怎么样?天正理想城两室两厅装修报价,天正理想城75平装修报价,天正理想城老房翻新装修案例,句容二手房改造装修效果图,句容哪家装修公司比较好?

【预算报价】编辑(小区名称、几室几厅、建筑面积、装修风格)发送至

132-6071-9302 小雍(立即回复装修报价)

案例分析:

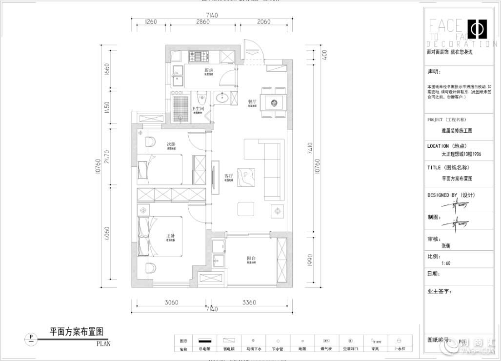
小区:天正理想城

面积:75平

户型:两室两厅

报价:8万

装修公司:一号家居

设计师:郭丽丽

设计说明:

本案原始结构比较方正,在格局上做了一些小变动,业主房子是给女儿上班住的,利用干区的墙体定制装饰柜,增加储物空间。主卧的门洞位置做了一点变动,让电视背景墙对称些,整体色调采用暖黄色,柜子整体用玉兰白,高雅温馨。

装修效果图:

平面图:

设计师:郭丽丽

设计理念:

        抛离了一整天的喧泄,回家让人兴奋的是一种确定感,确定有你熟悉的味道,确定有一处可以独占、发懒的角落以及你所钟爱的人……

擅长风格:

        现代简约,欧式,中式,美式,地中海。

代表作品:

         香悦澜山,高科荣境,金地湖城艺境,天正理想城,仙林翠谷,奥克斯钟山府,五矿晏山居等。

编辑短信"小区名 面积 姓名”发送至132-6071-9302或加QQ:3347454286即可获得免费量房、免费验房、免费出设计方案和360效果图等体验服务。

1天量房
2天出设计图
4天看全套设计方案
一号家居十年专业定制装修
一号家居一站式整体家居服务领导者 
一号家居中国真透明强保障的O2O装修平台

    南京一号家居十二年专业家装。公寓装修,毛坯房装修、二手房全部翻新、室内设计,样板间,装修案例,装修报价,别墅装修、复式装修、小户型装修、婚房装修、商品房装修 老人房装修等,是中国大的装修世家,集装效果图,装修日记,学装修,家居商城,装修论坛为一体。

【一号家居网五免特色服务】

【五免服务】免费验房、免费量房、免费出平面方案、免费出3D效果图、免费出报价

【七大保障】 品质保障、设计保障、价格保障、服务保障、施工保障、家具保障、家电保障

 

 装修公司:南京一号家居网

 门店地址:玄武区中央路266号一号家居馆

【装修24小时咨询】132-6071-9302  QQ:3347454286
 特色服务:免费预约验房、量房、出方案报价、出360?全景效果图


联系人 雍女士
025-13260719302 13260719302 3347454286
玄武区中央路266号
3347454286@qq.com
上一条 下一条
电话联系