首页 装潢设计 鼓楼知名装修公司-苏城南苑112平简欧风-南京一号家居网完美设计

鼓楼知名装修公司-苏城南苑112平简欧风-南京一号家居网完美设计

发布时间 2016-11-05 收藏 分享
价格 面议
区域 全国
来源 南京一号家居信息科技有限公司

详情描述:

鼓楼知名装修公司-苏城南苑112平简欧风-南京一号家居网完美设计

南京鼓楼装修案例,咨询热线:132-6071-9302在线咨询:334-7454-286,南京一号家居网南京站,南京一号家居网电话号码,南京鼓楼苏城南苑装修案例,鼓楼苏城南苑二手房改造装修报价,鼓楼靠谱一点的装修公司有哪些?鼓楼比较有名的装修公司有哪些?鼓楼一号家居怎么样?南京知名装修公司。

【预算报价】编辑(小区名称、几室几厅、建筑面积、装修风格)发送至132-6071-9302 小雍(立即回复装修报价)

装修效果图:

小区:鼓楼苏城南苑

面积:112平

户型:三室两厅

风格:简欧

报价:12万

装修公司:一号家居网

设计师:毕拾贰珠

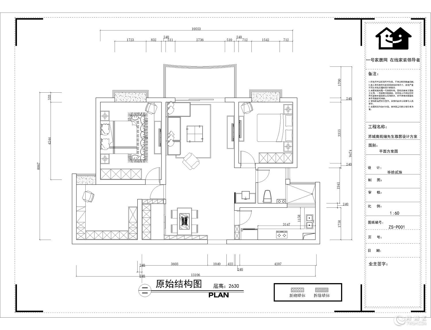
    本案为苏城南苑112平户型设计方案。该户型为舒适三房两卫户型,考虑户主对居住空间的舒适要求,整体为简欧风格。地面微晶石砖铺贴,背景墙面简约硬包,暖色整体基调,在低调中彰显着现代品位。

平面图:

VIP设计师:毕拾贰珠

设计理念:设计来源生活,又改变生活。初的梦想来源于初的懵懂加上初的灵感碰撞。

擅长风格:现代简约、田园风格、新中式、小清新、现代欧式

成功案例:保利罗兰香谷 保利罗兰春天 星叶枫情水岸 高科荣镜 保利紫晶山 等


编辑短信"小区名 面积 姓名”发送至132-6071-9302或加QQ:3347454286即可获得免费量房、免费验房、免费出设计方案和360效果图等体验服务。

    一号家居网,隶属南京壹号家信息科技有限公司。12年整体家装服务品牌,以创新服务产品为核心,集装修、设计、施工、建材、家具、家电等一系列业务产品为主导的家装O2O电商平台,提供“省心?更省钱”的一站式品质家装服务。 

2016年首届家装博览会,装修半价不是梦!

 

一、定金优惠:

    1、来就送:来就送价值298元空调被一床,限前1000户;

    2、定就送:现场交订500元送32寸海信液晶电视一台,限前200户;

    3、砸金蛋:现场交订500元享砸金蛋一次,低奖品为500元家具代金券,高奖项为格力3P柜式空调,100%有奖;

    4、保优惠:现场交订500元保装修半价优惠,优惠保留时间截至到9月17日为止。

二、签单优惠:

    1、现场签单享受装修半价优惠(半包部分5折);

    2、送13200元装修主材大礼包:具体包含橱柜2000元、木门1000元、瓷砖1500元 500元、定制衣柜2000元、地板1000元、卫浴600元、吊顶500元、淋浴房500元、石材500元、移门500元、墙纸1000元、窗帘1000元、灯具600元

【一号家居网五免特色服务】

【五免服务】免费验房、免费量房、免费出平面方案、免费出3D效果图、免费出报价

【七大保障】 品质保障、设计保障、价格保障、服务保障、施工保障、家具保障、家电保障

 装修公司:南京一号家居网
 门店地址:玄武区中央路266号一号家居馆

【装修24小时咨询】132-6071-9302  QQ:3347454286
 特色服务:免费预约验房、量房、出方案报价、出360?全景效果图障、价格保障、服务保障、施工保障、家具保障、家电保障


联系人 雍女士
025-13260719302 13260719302 3347454286
玄武区中央路266号
3347454286@qq.com
上一条 下一条
电话联系