首页 装潢设计 句容装潢公司-香山壹境简约时尚设计-一号家居品质装修

句容装潢公司-香山壹境简约时尚设计-一号家居品质装修

发布时间 2016-10-27 收藏 分享
价格 90000.00
品牌 樱花
区域 全国
来源 南京一号家居信息科技有限公司

详情描述:

句容装潢公司-香山壹境简约时尚设计-一号家居品质装修

句容香山壹境93平装修设计,咨询热线:132-6071-9302在线咨询:

334-7454-286,句容一号家居网装修报价,句容一号家居客服电话,句容一号家居口碑怎么样?句容附近好的装修公司,句容香山壹境老房翻新装修效果图,句容装修公司哪家比较靠谱一点?句容比较有名的装修公司有哪些?句容知名装修公司。

【预算报价】编辑(小区名称、几室几厅、建筑面积、装修风格)发送至132-6071-9302 小雍(立即回复装修报价)

装修效果图:

 

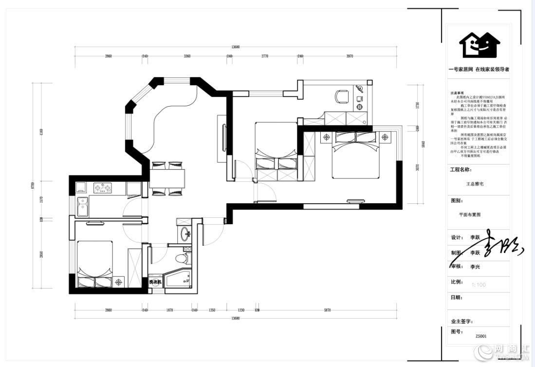
小区:香山壹境

面积:93平

户型:三室两厅

报价:9万

风格:现代简约

装修公司:一号家居

设计师:李跃

         此户型为香山壹境93户型,为三室两厅一厨一卫,依照业主的需求设计为现代简约风格,此户型为边户户型,南北通透,采光明亮,改动性不大,电视背景墙采用线条与造型墙纸相结合,不仅简单大方而且节约造价成本,沙发背景墙我们采用装饰挂画,既简单而又不失美感。

平面图:

设计师:李跃

工作经验:4年

设计风格:欧式、美式、简约、中式。

设计专长:平层、复式、住宅公寓等。

设计理念:形式追随功能

编辑短信"小区名 面积 姓名”发送至132-6071-9302或加QQ:3347454286即可获得免费量房、免费验房、免费出设计方案和360效果图等体验服务。

2016年首届家装博览会

    一号家居网,隶属南京壹号家信息科技有限公司。12年整体家装服务品牌,以创新服务产品为核心,集装修、设计、施工、建材、家具、家电等一系列业务产品为主导的家装O2O电商平台,提供“省心?更省钱”的一站式品质家装服务。

 装修公司:南京一号家居网
 门店地址:玄武区中央路266号一号家居馆

【装修24小时咨询】132-6071-9302  QQ:3347454286
 特色服务:免费预约验房、量房、出方案报价、出360?全景效果图


联系人 雍女士
025-13260719302 13260719302 3347454286
玄武区中央路266号
3347454286@qq.com
上一条 下一条
电话联系